本案例感謝漂亮家居採訪
同場加映↓↓↓
舊屋整型大公開:http://blog.searchome.net/magic/post/17
一般舊屋翻新,往往困擾著不少準備裝修的屋主。
因為比起新屋來說,舊屋有不少問題存在,
常見的問題有:管線老舊、光線不好、壁癌、漏水問題、格局不良、
動線不佳、人口結構的改變以及不符合現在的生活動線‧‧‧等等,
所以難免總是特別令人苦惱。
正因為如此,我們更加注重基礎工程的檢查,
一方面,加強房屋結構,處理舊有問題;
另一方面,也瞭解屋主需求,量身打造、設計專屬居家,
延長房子壽命,讓屋主住得好安心、好舒服!
屋主需求與想法:
正如多數現代人一樣,屋主夫妻本身工作都相當忙碌,
所以很希望工作完回到家,除了休息之外,更可以有放鬆及休閒的居住環境,
讓回家就像度假、徹底放下一整天的緊繃、舒緩工作上的疲勞。
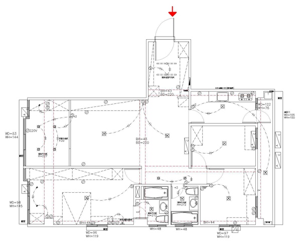
先來看看還未規劃前的:空間配置平面圖吧~
Before
設計理念:
改造屋齡三十年的老屋,最迫切的便是讓僅有前後採光的長型屋,能擁有夠明亮的光線。
屋內原有一個和室,剛開始屋主堅持要作傳統架高地板的封閉和室,
但在經過仔細溝通後,決定採平接式地板,搭配鋁框玻璃拉門,保留客廳的採光與穿透感。
由於房屋本身的空間夠大,
在格局上,除了原有的格局(玄關、客廳、餐廚、後陽台、房間、浴室...)之外,
我們特別加強了:前面說的和室空間-B區-起居室 及 I區-主臥更衣間的規劃。
讓每一個空間都不浪費!
After
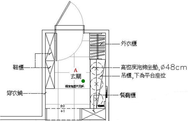
在玄關的部份:
‧我們將舊門整個換新
‧增設兩個大鞋櫃,方便收納一家4口的各式鞋類
‧加裝穿衣鏡,讓一家人美美的開心出門
‧右邊的外衣櫃,可以減去大衣、外套掛放的麻煩,也可擺放一些服飾配件
‧當站著穿鞋不方便時,特地規劃的平台座位區,便派上用場囉~
瞧!!!好看又實用的玄關-改裝完成!
兩側除了有充足的收納,
並且以低檯度的長椅及版岩壁面,將屋主喜愛的禪風設計也融入空間中。
在客廳方面:
我們規劃了-壁掛式的電視機和All In One的影音娛樂系統
考量到身為主管的女主人常與同事在家中開會,
因此客廳的設計除了視聽休閒的娛樂考量外,
還有一個隱藏式升降投影機與百吋大螢幕,讓這裡隨時可以變成會議簡報的空間。
普通休閒的時候,一家人不出門,也能輕鬆、簡單地享受到電影院級的影音娛樂!
接下來我們要來好好地介紹一下,特別規劃的休閒空間-起居室囉~
就像前面所提到的,原本屋主想作傳統和室,但經過詳加溝通後,
我們藉由拋光石英磚和柚木實木集成材地板,兩種不同材質界定不同使用區域。
我們配合屋主想要一個休閒空間的需求,並搭配其喜愛的禪風風格,
同時設計製作柚木長桌搭配水草編織的圓形矮凳,
再用玻璃拉門區隔出多功能起居間。
窗邊可以種些花花草草或是欣賞風景,
有時候和朋友、家人一起,或者一個人在這裡看看電視,也很愜意,
偶爾三五好友一同聚會、泡茶聊天、開party也沒問題,
甚至也可以是陪小孩做功課、與同事開會的會議空間,
我想,即使什麼也不作,光是待在這裡也是一種幸福吧!
不論何時,在這裡就是全家人最獨一無二、最舒服、最放鬆的休閒處所了!
餐廚空間:
Before
After
餐廳旁的餐櫃不僅可以當作隔間櫃使用,中段利用金箔玻璃的雙面展示設計,
創造出空間端景,也成為入門後的焦點。
在格局上我們不作變更,利用現有的大空間,搭配質感餐桌椅
並將燈飾換成吊燈,增添全家人用餐氣氛~
廚房後陽台方面:
我們利用廚房後面的長型陽台,隔出儲藏室空間,讓生活機能更完備。
廚房則是將原有的設備重新規劃、配置
增加整體空間明亮度和更多收納空間,
讓下廚也有好心情~
After
孩房部份:
兩間孩房我們都加強收納
其中一間孩房的床,我們運用了-子母床
乍看好像平平無奇的子母床,到底有什麼功用呢?
各 位 看 倌~見證奇蹟的時候到了(劉謙口吻
嘿~只要輕輕一拉,一張床立刻就給你變出兩張床啦!是不是很像變魔術呢?
撇開子母床的便利性不說,這樣設計的好處更在於:
即使在同一空間擺放兩張床,也能完全不佔位置,沒有不舒服的擁擠、狹小感,
而且當媽咪想陪孩子一同睡覺、說說話、講故事時,
只要輕輕拉開床,媽咪即可與寶貝舒服入眠,不用再跟孩子擠在小小的床上。
是不是很棒呀?!
浴室部份:
Before

我們將老舊管線換新,並設置整套浴櫃,使空間更有整體感。
乾溼分離的設計,讓使用的機能區分清楚,地板不會潮濕黏滑;
既可保持地面的乾爽,也可避免馬桶被水濺到噴得濕濕的。
主臥的浴室我們也是採用乾溼分離!
After
看到這裡,是不是覺得奇怪?怎麼都還沒介紹到主臥室呢???
各位看倌們,別急別急,最後壓軸的便是主臥啦!
主臥的設計我們以女主人喜愛的夢幻紫為基調,
在採光良好的窗邊則設計長型書桌,書桌下方用相同材質門片隱藏書櫃收納,
符合男主人大量書籍收納功能之餘,善用窗邊空間,簡單的小書房就這樣完成了~
偶爾坐在窗邊配著日光、看著自己喜愛的書,聽聽音樂,好不享受!
原本的柱體,我們使用美化包樑方式,改裝成好看又實用的床頭櫃。

在化妝檯部份,使用上掀式的設計,解決瓶瓶罐罐收納的麻煩
讓整體看起來更有一致感。
每每看到伸展台上穿得票漂亮亮走秀的模特兒們時,
是否曾有過一絲羨慕的感覺呢?
是否也想擁有一間專屬的更衣室呢?
一想到男女主人在自己的天地裡,開心的幸福表情時,
我們就知道這間更衣室絕對不可以缺少~
在這樣的構思下,一間滿載男女主人夢想的更衣室就出現啦!
當然,模特兒所需的方便好收納設計一樣也不缺~
最後則是,主臥空間裡的影音娛樂設施囉~
不論是收看電視節目,還是觀賞DVD影片,都沒問題!
寫到這裡,常看我們部落格的你們,一定會覺得:阿咧~這個案例好眼熟啊!
是的,聰明的你們沒有猜錯,這就是之前發表過的-現代修禪家居(歡迎點我複習)
為什麼同個案例要再重新發一篇呢?
當然最主要也是想盡量補足之前沒介紹到的部份,
雖然一個家的故事,是怎樣說也說不完的...。
每個人對家總有一份寄託、一個夢想,
我們覺得不論是購置新屋或是將原有的舊屋做裝潢設計,
每個空間都是獨特的。
因此,重新再介紹,就是希望這份單一‧無二的心情能傳達給你們,
即使是舊屋,也能有新成屋的樣貌。
─恭喜‧此案例-翻新成功;也感謝屋主讓我們幫忙打造夢想家居─
大楹室內設計
www.home-999.com
TEL:(02)8251-0938
FAX:(02)2253-1931
Add:台北縣板橋市文化路二段182巷3弄74號13樓(近江子翠捷運3號出口)
部落格:http://dahyug.pixnet.net/blog
居家住宅 / 商業空間 / 辦公室 / 空間規劃 / 設計施工

留言列表